Afficher toutes les photos (17)

Informations générales

Hôtel · 4 Salles · 12 Chambres

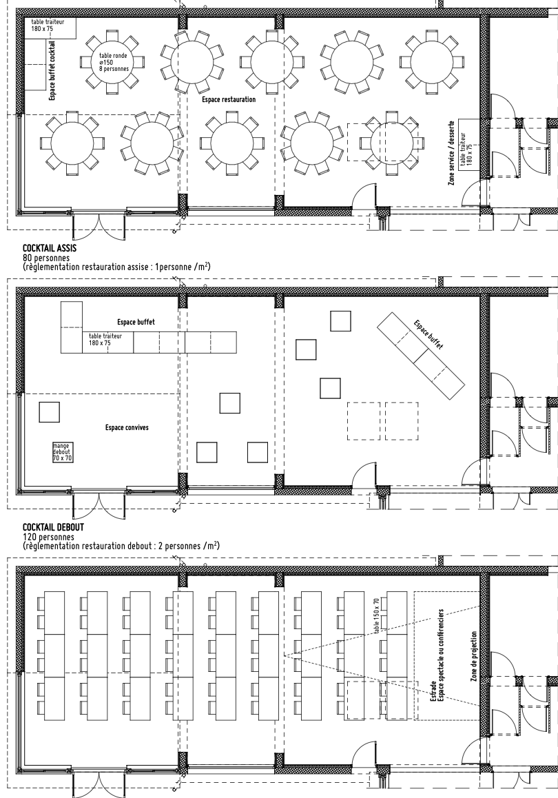
Capacités maximales par configuration de salle

Réunion
80 pers.
Salle en U
50 pers.
Théâtre
100 pers.
Cabaret
Rang d'école
Banquet
80 pers.
Cocktail
100 pers.
Voir toutes les capacités des salles

Présentation du lieu

Au vert
Cosy

La Cascade est un lieu nature et modulable situé à Saint-Genis-les-Ollières, à seulement 20 minutes de Lyon. Dédié aux événements professionnels, le domaine offre un cadre verdoyant propice aux séminaires, réunions et temps de cohésion, tout en restant facilement accessible depuis Lyon.

Engagements RSE

Cet établissement n'a pas encore obtenu son FairScore.

Le FairScore Événementiel est un score de A+ à E- qui mesure la performance RSE d’un lieu événementiel de manière simple et comparable. Basé sur une méthodologie d’évaluation des impacts, il transforme des engagements parfois difficiles à évaluer en un indicateur clair et exploitable.

Certifié par FairMoove Solution

Equipements & Services

Activités

    Cours de cuisine & Gastronomie
    Multi-Activités & Olympiades
    Karaoké
    Murder Party & Enquête
    VTT
    Bien-être

Services & Installations

    Piscine
    Parking sur place
    Terrasse / Cour intérieure
    Terrain de pétanque
    Cuisine événementielle
    Jardin / Parc
    Espace détente
    Vestiaire

Équipements

    Equipement son
    Vidéoprojecteur
    Wifi
    Climatisation
    Animations
    Micro
    Blocs-notes & stylo

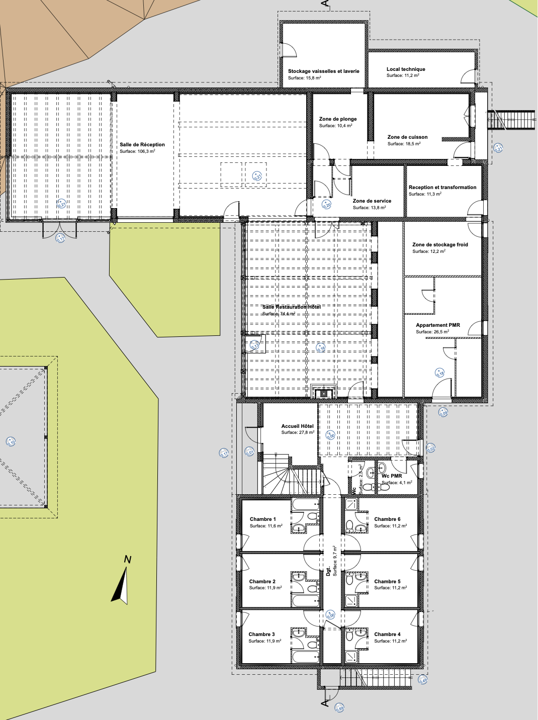
Configuration de l’établissement

Hébergement

Chambre Configuration Nombre de chambres
Chambre standard
1x 12

Salles & espaces utilisables

Salle Lumière du jour
Cascade et Jardin 100 m2
80 50 100 - - 80 100
Jardin 70 m2
50 30 80 - - - 100
Restaurant 70 m2
50 - - - - - -
Cascade 30 m2
20 20 20 - - 20 100

Plans

Formules & Prix d’appels

Demi-journée d’étude 1 salle de réunion pour la demi-journée + 1 collation + 1 déjeuner
Dès 45 € HT par pers.
Journée d’étude 1 salle de réunion pour la journée + 2 collations + 1 déjeuner
Dès 68 € HT par pers.
Demi-journée d’étude + cocktail 1 salle de réunion pour la demi-journée + 1 collation + 1 déjeuner + 1 cocktail comprenant 15 pièces par pers.
Dès 95 € HT par pers.
Journée d’étude + cocktail 1 salle de réunion pour la journée + 2 collations + 1 déjeuner + 1 cocktail comprenant 15 pièces par pers.
Dès 128 € HT par pers.
Séminaire 1 nuit 1 salle de réunion pour la journée + 2 collations + 1 petit-déjeuner + 1 déjeuner + 1 dîner + 1 nuit en chambre simple
Dès 170 € HT par pers.
Séminaire 1 nuit tout compris Accès illimité aux espaces + Hébergement + Boissons et collations à volonté + Tous les repas inclus
Dès 220 € HT par pers.
Hébergement pour 1 nuit 1 chambre pour 1 pers. + 1 petit-déjeuner
Dès 100 € HT par chambre
Cocktail dînatoire 1 espace de réception pour la soirée + 1 cocktail comprenant 15 pièces par pers. + 1 bouteille de vin pour 3 pers.
Dès 78 € HT par pers.
Soirée dansante 1 espace avec piste de danse pour la soirée + 1 cocktail comprenant 15 pièces par pers. + 1 bouteille de vin pour 3 pers. + 2 verres d’alcool par pers.
Dès 95 € HT par pers.

Tarifs Location seule

Cascade et Jardin Tarif Journée - dès 900 € HT
Jardin Tarif Journée - dès 600 € HT
Restaurant Tarif Journée - dès 400 € HT
Cascade Tarif Journée - dès 400 € HT

Aucun avis

Ce lieu n'a pas encore eu d'avis.

Localisation

Rue de la Cascade, 69290 Saint Genis les Ollières , France
07:00 - 09:00

Pour se déplacer

Aéroport Lyon Saint Exupery
36 min.

Ce lieu vous intéresse ?

Envoyez le brief de votre événement à Jérôme et obtenez un devis personnalisé gratuitement !

🤩

Vous avez le choix !

19 000 partenaires référencés sur Kactus

🫶

Ils nous font confiance !

90 000 utilisateurs et 35 000 entreprises organisent leurs événements sur Kactus

❤️

L'expérience est simple et fluide !

4.5/5 c’est le taux de satisfaction de nos clients suite à leur expérience sur Kactus