Pullman Bordeaux Lac ****

Afficher toutes les photos (39)

Informations générales

Hôtel · 17 Salles · 166 Chambres
  • Certification RSE
  • Qualité/Prix

Capacités maximales par configuration de salle

Réunion
30 pers.
Salle en U
70 pers.
Théâtre
500 pers.
Cabaret
200 pers.
Rang d'école
140 pers.
Banquet
750 pers.
Cocktail
25 pers.
Voir toutes les capacités des salles

Présentation du lieu

Accorhotels
Au vert
Groupe Ferré
Moderne
Pullman

Le Pullman Bordeaux Lac, hôtel 4 étoiles moderne, vous accueille avec ses 166 chambres élégantes et ses 2 000 m² d’espaces de réunion modulables, parfaits pour vos événements professionnels. Idéalement situé et facilement accessible depuis le centre-ville, l’aéroport et les axes principaux, il combine confort, restauration raffinée et équipements de pointe pour allier travail et détente dans un cadre dynamique et inspirant.

Découvrez le lieu en vidéo

Engagements RSE

Cet établissement n'a pas encore obtenu son FairScore.

Le FairScore Événementiel est un score de A+ à E- qui mesure la performance RSE d’un lieu événementiel de manière simple et comparable. Basé sur une méthodologie d’évaluation des impacts, il transforme des engagements parfois difficiles à évaluer en un indicateur clair et exploitable.

Certifié par FairMoove Solution

Autres labels :

Clef Verte

Equipements & Services

Activités

    Visite & Culture
    Oenologie

Services & Installations

    Piscine
    Salle de fitness
    Parking sur place
    Terrasse / Cour intérieure
    Cuisine événementielle
    Jardin / Parc
    Accès PMR
    Espace détente
    Vestiaire
    Fumoir

Équipements

    Vidéoprojecteur
    Wifi
    DJ
    Animations
    Blocs-notes & stylo
    Ecran LCD
    Micro
    Climatisation
    Paperboard
    Service pressing
    Equipement son

Configuration de l’établissement

Hébergement

Chambre Configuration Nombre de chambres
Chambre Supérieure
112x 56
Chambre Deluxe
78x 39
Chambre Deluxe Vue lac
104x 52
Suite Junior
38x 19

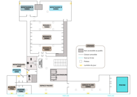
Salles & espaces utilisables

Salle Lumière du jour
Alienor 77 m2
25 23 50 25 30 40 25
Ausone 73 m2
15 12 20 - - - -
Epernon 52 m2
15 - 20 - - - -
Espace Flore 320 m2
- - - - - 220 -
Montaigne A 150 m2
30 40 110 50 40 90 -
Montaigne AB / Rohan ABC 1100 m2
- - - - - 750 -
Montaigne B 350 m2
- - 150 - 120 200 -
Rohan A 150 m2
- 35 90 - 35 70 -
Rohan B 300 m2
- 70 250 140 80 240 -
Rohan C 150 m2
- 35 90 - 35 70 -
Sous commission 26 m2
- 12 15 - - - -
Montesquieu 20 m2
10 - - - - - -
Rohan A-B-C 600 m2
- - 500 200 140 400 -

Plans

Formules & Prix d’appels

Demi-journée d’étude 1 salle de réunion pour la demi-journée + 1 collation + 1 déjeuner
Dès 62 € HT par pers.
Journée d’étude 1 salle de réunion pour la journée + 2 collations + 1 déjeuner
Dès 71 € HT par pers.
Demi-journée d’étude + cocktail 1 salle de réunion pour la demi-journée + 1 collation + 1 déjeuner + 1 cocktail comprenant 15 pièces par pers.
Dès 108 € HT par pers.
Journée d’étude + cocktail 1 salle de réunion pour la journée + 2 collations + 1 déjeuner + 1 cocktail comprenant 15 pièces par pers.
Dès 117 € HT par pers.
Séminaire 1 nuit 1 salle de réunion pour la journée + 2 collations + 1 petit-déjeuner + 1 déjeuner + 1 dîner + 1 nuit en chambre simple
Dès 270 € HT par pers.
Hébergement pour 1 nuit 1 chambre pour 1 pers. + 1 petit-déjeuner
Dès 160 € HT par chambre
Cocktail dînatoire 1 espace de réception pour la soirée + 1 cocktail comprenant 15 pièces par pers. + 1 bouteille de vin pour 3 pers.
Minimum participants : 30
Dès 46 € HT par pers.
Soirée dansante 1 espace avec piste de danse pour la soirée + 1 cocktail comprenant 15 pièces par pers. + 1 bouteille de vin pour 3 pers. + 2 verres d’alcool par pers.
Dès 56 € HT par pers.

Tarifs Location seule

Alienor Tarif 1/2 Journée - dès 417 € HT
Tarif Journée - dès 625 € HT
Ausone Tarif 1/2 Journée - dès 292 € HT
Tarif Journée - dès 458 € HT
Epernon Tarif 1/2 Journée - dès 250 € HT
Tarif Journée - dès 417 € HT
Espace Flore Tarif 1/2 Journée - dès 800 € HT
Tarif Journée - dès 1 254 € HT
Tarif Soirée - dès 800 € HT
Montaigne A Tarif 1/2 Journée - dès 917 € HT
Tarif Journée - dès 1 250 € HT
Montaigne AB / Rohan ABC Tarif 1/2 Journée - dès 5 167 € HT
Tarif Journée - dès 6 917 € HT
Montaigne B Tarif 1/2 Journée - dès 1 667 € HT
Tarif Journée - dès 2 125 € HT
Rohan A Tarif 1/2 Journée - dès 792 € HT
Tarif Journée - dès 1 167 € HT
Rohan B Tarif 1/2 Journée - dès 1 417 € HT
Tarif Journée - dès 2 083 € HT
Rohan C Tarif 1/2 Journée - dès 792 € HT
Tarif Journée - dès 1 167 € HT
Sous commission Tarif Journée - dès 292 € HT
Montesquieu Tarif 1/2 Journée - dès 250 € HT
Tarif Journée - dès 333 € HT
Rohan A-B-C Tarif 1/2 Journée - dès 2 926 € HT
Tarif Journée - dès 3 763 € HT
Tarif Soirée - dès 2 926 € HT
4.9 / 5

11 avis

DIR
DIR
Avis laissé en mars 2026
         
Assemblée générale
La Poste Maison Mère
La Poste Maison Mère
Avis laissé en mars 2026
         
Journée de travail

L'équipe du Pullman est à notre écoute, et met tout en œuvre pour répondre à nos attentes. Belle expérience. Merci pour votre accompagnement tout au long de la journée.

Réponse du lieu

Sophie,
Ce fut un plaisir de vous accueillir de nouveau au Pullman Bordeaux Lac ! Merci pour votre retour positif que je transmets à nos équipes.
A bientôt,
Nelly

AQUILA
AQUILA
Avis laissé en février 2024
         
Journée de travail

Localisation

Avenue Jean Gabriel Domergue, 33300 Bordeaux, France
07:00 - 07:00

Pour se déplacer

Aéroport Bordeaux Mérignac
15 min.

Ce lieu vous intéresse ?

Envoyez le brief de votre événement à Manon et obtenez un devis personnalisé gratuitement !

Délai moyen de réponse : Moins d'un jour ouvré

🤩

Vous avez le choix !

19 000 partenaires référencés sur Kactus

🫶

Ils nous font confiance !

90 000 utilisateurs et 35 000 entreprises organisent leurs événements sur Kactus

❤️

L'expérience est simple et fluide !

4.5/5 c’est le taux de satisfaction de nos clients suite à leur expérience sur Kactus


Délai moyen de réponse : Moins d'un jour ouvré